0463-98-1255fax:0463-98-1256
〒259-1132 神奈川県伊勢原市桜台2-16-25https://miraio-k.com一級建築士事務所
売買
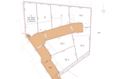
伊勢原市高森四丁目A
1,790万円
伊勢原市高森伊勢原市高森四丁目1953-1B
1,930万円
Copyright © 2026 株式会社 ミライオ開発 All rights Reserved.